An architecture firm find the beauty in the everyday.
20251106 - COMMUNITIES FLOOR PLANS_cieraVA3AJ - Sheet - 61 - 50TH - HERO IMAGE.png

WEST SEATTLE URBAN INFILL

west seattle urban infill

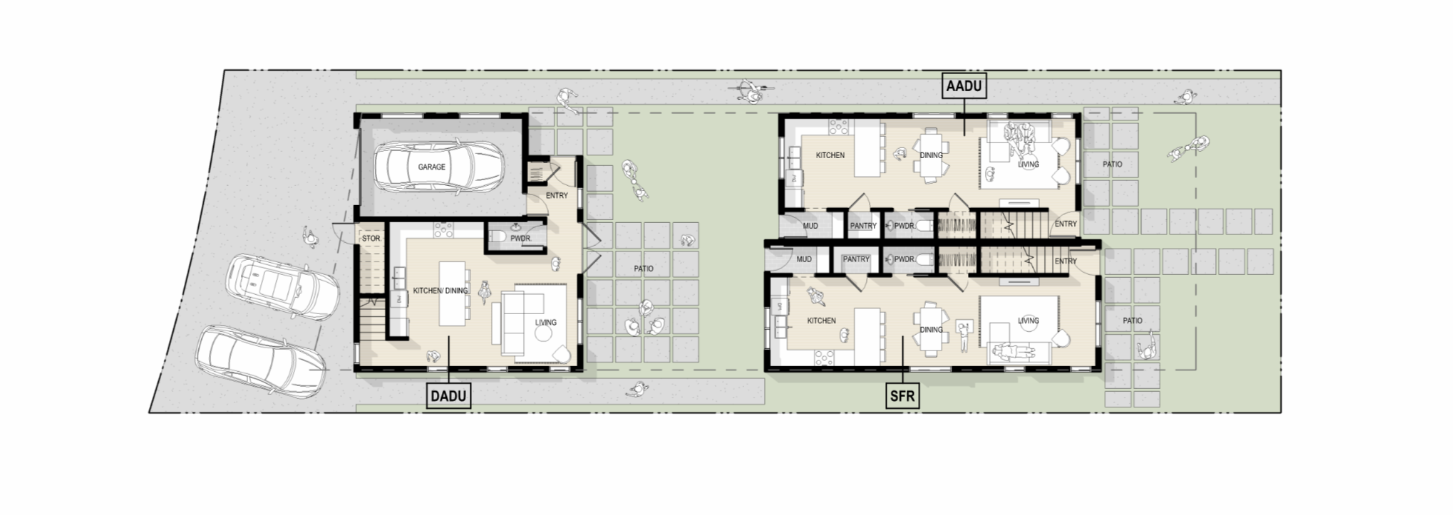
The project initially sought to reuse the existing structure; however, a detailed assessment revealed that it lacked the structural capacity required for meaningful reuse. The site was reimagined with three modestly scaled residential units designed for small families. Each unit is organized with an emphasis on efficiency, natural light, and livability, while the overall massing, materiality, and scale respond carefully to the established residential character of West Seattle.



FLOOR PLANS

LEVEL 1 + SITE PLAN

LEVEL 2